Villa Bergljots Gate
Program: 2 x Enebolig
Størrelse: 200 - 210 m2
År : 2021
Beliggenhet: Madla Stavanger
Byggherre: Boly -Prosjekt as
Status: I Prosess
Bergljots gate er en liten rolig gate med lave eldre eneboliger i lune solrike hager. Dette er et miljø man ønsker å videreføre. Med moderne design og varme materialer fornyes arkitekturen i Bergljotsgate i nennsom skala.
Boligene gir rammene for interesser og behov, ønsker og drømmer. De yter service og gir velvære for det livet familien ønsker å leve. Hjemmet de ønsker å skape.
Livet til en familie er i stadig forandring. Behovene er i kontinuerlig endring. Husene i Bergljots Gate åpner for en fleksibilitet og gjør det mulig å endre hjemmet. I perioder er hovedetasjen den store åpne sosiale sonen, mens senere har man behov for flere små møte-steder. I en fase vil man fylle huset med mange rom mens man senere ønsker en stor eksklusiv masterunit med lounge. Huset tilpasser seg dine behov.
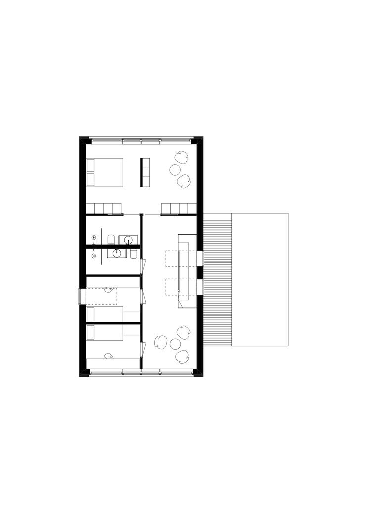
Underetasjen har en rekke støttefunksjoner og direkte kontakt til hagenivå via biinngang. Her finnes primærrom og noe av arealet kan brukes som utleieenhet.
I hovedetasjen flyter sonene over i hverandre, her er det åpenhet. Vinduer i fasaden gir gjennomlys og utsikt mot landskapet fra den ene siden og kontakt til hagen på den andre.
Alt går i ett og over i hverandre. Ute og inne sløres bort.
I den øverste etasjen har man lune soner. Huset svever over bydelen med utsikt over kulturlandskap og innsjøer. Åpninger i taket og lys fra store endevinduer skaper soner for ro og ettertanke, men også lek og spill. Her kan man lage sine rom etter behov og ønsker
U.ETG
1.ETG
2.ETG
